.

Cálculo del coeficiente de capacidad de disipación de energía en pórticos regulares de concreto reforzado con diferente altura, para una zona de amenaza sísmica alta

Calculation of the coefficient of energy dissipation capacity in regular reinforced concrete frames with different heights, for a zone of high seismic hazard

DOI: http://doi.org/10.17981/ingecuc.17.2.2021.17

Artículo de Investigación Científica. Fecha de Recepción: 11/11/2019. Fecha de Aceptación: 02/04/2021.

Javier Alberto Nebrijo-Ramos orcid_24x24

Universidad del Cauca. Popayán (Colombia)

javierneb@unicauca.edu.co

Yessica M. Menza Calambás orcid_24x24

Universidad del Cauca. Popayán (Colombia)

yessica@unicauca.edu.co

.

Para citar éste artículo:

J. Nebrijo-Ramos & Y. Menza Calambás, “Cálculo del coeficiente de capacidad de disipación de energía en pórticos regulares de concreto reforzado con diferente altura, para una zona de amenaza sísmica alta”, INGE CUC, vol. 17, no. 2, pp. 193–210, 2021. DOI: http://doi.org/10.17981/ingecuc.17.2.2021.17

.

Resumen

IntroducciónEl coeficiente de capacidad de disipación de energía (R) es un parámetro determinante en el diseño sismo-resistente. Este parámetro representa la cantidad de energía que puede disipar una estructura mediante sus deformaciones inelásticas, de modo que permite reducir las fuerzas sísmicas para el diseño de una estructura. En los códigos de diseño se presentan valores para dicho coeficiente R según el sistema estructural y el material de los elementos estructurales, pero en ninguno de los casos se considera el comportamiento dinámico de una estructura para seleccionar su valor.

Objetivo Calcular y verificar el valor del coeficiente R para sistemas aporticados de concreto reforzado de baja, mediana y gran altura.

Metodología Para obtener los resultados de esta investigación se utilizó un método cuantitativo. Se analizaron sistemas aporticados en el campo no-lineal e inelástico, conociendo las propiedades plásticas de las secciones a través de los diagramas momento vs. curvatura. Estos diagramas fueron obtenidos por métodos analíticos y usando el programa XTRAC. Luego, con un análisis estático no-lineal se obtuvo la curva de capacidad, y usando del método del espectro de capacidad, el método NEHRP y el método de Newmark y Veletsos, se calculó el coeficiente R.

Resultados Se obtuvo el coeficiente R para pórticos con características dinámicas diferentes, encontrando dependencia entre el valor de R con el periodo de vibración de cada pórtico modelado.

Conclusiones Los resultados obtenidos permiten cuestionar la selección del valor del coeficiente R con los valores sugeridos en los códigos de diseño. Se concluye que para sistemas aporticados en concreto reforzado de baja altura (periodos de vibración bajos) el valor de R puede ser menor que el sugerido para este tipo de estructuras. Y en las estructuras con altos periodos de vibración pueden obtenerse mayores coeficientes R.

Palabras clave— Punto de desempeño; Ductilidad; Curva de capacidad, Articulación plástica; Pushover (análisis estático no-lineal); pórtico; disipación de energía; histerético; confinado

Abstract

IntroductionThe energy dissipation capacity coefficient (R) is a determining parameter in the earthquake-resistant design. This parameter represents the amount of energy that can dissipate a structure through its inelastic deformations, that allows to reduce the seismic forces for the design of a structure. In the design codes, values for said R coefficient are presented according to the structural system and the structural elements material, but in none of the cases is the dynamic behavior of a structure considered to select its value.

Objective Calculate and verify the value of the R coefficient for reinforced concrete porticos systems of low, medium and high height.

MethodologyA quantitative method was used to obtain the results of this investigation. Systems contributed in the non-linear and inelastic field were analyzed, knowing the plastic properties of the sections through the moment vs. diagrams. curvature. These diagrams were obtained by analytical methods and using the XTRAC program. Then, with a non-linear static analysis the capacity curve was obtained, and using the capacity spectrum method, the NEHRP method and the Newmark and Veletsos method, the R coefficient was calculated.

Results The coefficient R was obtained for frames with different dynamic characteristics, finding dependence between the value of R and the period of vibration of each modeled portal.

Conclusions The results obtained allow questioning the selection of the value of the R coefficient with the values suggested in the design codes. It is concluded that for systems provided in reinforced concrete of low height (low vibration periods) the value of R may be less than that suggested for this type of structures. And in the structures with high vibration periods, higher R coefficients can be obtained.

KeywordsPerformance point; Ductility; Capacity curve, Hinge; Pushover (non-linear static analysis); frame; energy dissipation; hysteretic; confined

I. Introducción

Es ineficiente e inconveniente diseñar una estructura que resista elásticamente la acción proveniente del sismo de diseño, por tal motivo la gran mayoría de códigos de diseño sismo resistente, permiten diseñar las edificaciones para una carga sísmica reducida [1], haciendo énfasis en la filosofía de diseño donde la estructura disipa la energía proveniente del sismo mediante acciones inelásticas que se desarrollan en los elementos pertenecientes a la estructura principal [2], por tal motivo se hace uso del El coeficiente de capacidad de disipación de energía (R) que permite la reducción de la magnitud de la demanda sísmica [3].

Actualmente el diseño de los elementos estructurales es orientado por el Capítulo A del Reglamento Colombiano de Construcción Sismo Resistente [21]. En el numeral A.3.7, la norma establece que las Fuerzas Sísmicas (Fs) obtenidas por el análisis deben reducirse dividiéndolas por el coeficiente de capacidad de disipación de energía (R), seleccionado según el sistema estructural de resistencia sísmica. Sin embargo, este coeficiente ha sido blanco de múltiples cuestionamientos, debido a la gran controversia generada por el simplismo con que los códigos de diseño lo postulan [4]. En la literatura se encuentran actualmente aportes de investigadores que introducen diferentes métodos para el adecuado cálculo de dicho coeficiente, o metodologías de diseño que no requieren el uso del coeficiente R, con el objetivo de encontrar la respuesta más aproximada y segura de la estructura frente a un efecto dinámico.

El valor exacto de la capacidad de disipación de la energía depende de aspectos que son propios de cada estructura, como lo son: el periodo fundamental y el grado de irregularidad. Estos factores son ignorados [21], pero existen códigos como la norma antisísmica chilena [22] donde para el cálculo del coeficiente (R) es indispensable conocer el valor del período fundamental de la estructura en cada dirección de análisis [5]. Por lo anterior, es conveniente analizar bajo nuestras condiciones geológicas el efecto de las variables anteriormente nombradas para la determinación del grado de disipación de energía de una estructura.

Las secciones de una viga o columna están sometidas frente a cargas de origen dinámico y estático, por tal motivo es imperativo conocer las condiciones resistentes y dúctiles de cada sección. Se conoce que el acero y el concreto trabajan en conjunto garantizando la adherencia entre ambos materiales, y que por principios estáticos se logra equilibrio interno entre los esfuerzos de compresión en el concreto y de tensión en el acero. Con base al principio anterior y para conocer las propiedades elásticas e inelásticas de la sección, se necesita calcular las relaciones de momento interno vs curvatura, con el fin de obtener la rigidez de una sección de acuerdo al nivel de cargas que gravita sobre la misma [6]. Es una teoría muy amplia que incursiona en el desempeño no lineal de la sección, considerando aspectos determinantes como el confinamiento. La metodología usada se acogió al modelo constitutivo de Kent and Park modificado y los resultados fueron comparados con programas especializados en esta temática como: XTRACT y SAP2000.

Luego, se calcularon diferentes valores del coeficiente de capacidad de disipación de la energía (R) para pórticos planos en zonas de amenaza sísmica alta como Popayán. Este procedimiento se realizó para pórticos planos de distinta altura total (buscando variar su periodo fundamental en función de solamente su altura). Para el desarrollo de esta investigación se realizaron procedimientos analíticos, que fueron comparables con softwares avanzados como SAP2000 y XTRACT.

Finalmente, se concluyó que el coeficiente R establecido [21], debería ser seleccionado, entre otros aspectos, según el comportamiento dinámico de cada estructura y principalmente en función de su periodo de vibración.

II. Revision Literaria

A. Curva constitutiva del acero, Modelación de Mander

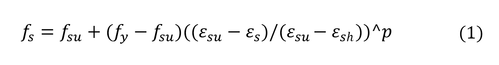
La mayor incógnita para los investigadores, es modelar de manera cercana el comportamiento del acero cuando llega a la zona de endurecimiento por deformaciones, ya que todos los modelos son aproximaciones a las curvas reales que se extraen en un ensayo de laboratorio. Por tal motivo Mander en 1984 formuló las siguientes expresiones, que describen el comportamiento en dicha zona [7].

Donde fsu es el esfuerzo máximo que alcanza el acero, fy es el esfuerzo de fluencia del acero, es la deformación unitaria correspondiente al máximo esfuerzo alcanzado por el acero, es la deformación donde inicia la meseta de fluencia del acero, es la deformación donde termina la meseta de fluencia; fs1 y εs1 se obtienen mediante ensayos de laboratorio y corresponden a un punto intermedio en la zona de endurecimiento por deformaciones. Si no se cuenta con este tipo de herramientas, entonces se pueden promediar los valores de fy y fsu obteniendo así fs1. Luego, usando las ecuaciones anteriores se puede hallar εs1 haciendo fs igual a fs1 y εs igual a εs1.

B. Curva constitutiva del concreto, Modelación de Kent & Park

En 1982 se realizó la modificación al modelo inicial de Kent and Park, donde se demostró que el concreto confinado genera un incremento en su resistencia compresión. Además, se ingresó la constante k que simboliza el incremento causado por el confinamiento del concreto (Fig. 1) [8].

Fig. 1. Modelo esfuerzo-deformación modificado de Kent and Park para concreto confinado con estribos rectangulares.
Fuente: [8].

1) Región AB: εc ≤ k * 0.002

2) Región BC: k * 0.002 ≤ εc ≤ ε20c

3) Región CD: εc ≥ ε20c

Donde f’c es la resistencia a compresión del concreto, ρs es la relación del volumen del refuerzo transversal al volumen del núcleo de concreto medido al exterior de los estribos. El coeficiente Z indica la pendiente de la región BC. La pendiente de la zona BC es el resultado de la deformación que se presenta cuando el esfuerzo f’c se ha reducido un 50% y se obtiene de registros experimentales. Para el cálculo de Z, ε50u y ε50c son las deformaciones que ocurren en el concreto inconfinado y confinado respectivamente, cuando la resistencia a compresión f’c ha bajado a su 50%. ε50h es la diferencia entre ε50c y ε50u.

C. Relación Momento-Curvatura

Para el diseño de una estructura, el análisis de las secciones propuestas es uno de los aspectos que necesariamente se debe conocer. El diagrama Momento-Curvatura representa las condiciones resistentes y dúctiles de las secciones transversales, donde las dimensiones de las secciones y la cuantía de acero suministrada son determinantes en los resultados obtenidos. Este diagrama es importante, ya que se pueden conocer propiedades del concreto armado, como que tan dúctil o resistente es el elemento. Asimismo, el área bajo la curva de la parte elástica representa la energía interna, la parte bajo la región elástica representa la deformación acumulada y el área bajo la zona de post-fluencia corresponde a la energía disipada a través de las deformaciones plásticas [9], [6] .

La curvatura (φ) puede variar de acuerdo a las variaciones en el eje neutro y a las deformaciones unitarias (Fig. 2). Al incrementar el momento externo se generarán fisuras que disminuirán la rigidez, reducción que será mayor para las secciones que no posean demasiado refuerzo longitudinal. Las secciones que están sub-reforzadas, presentan un diagrama Mφ prácticamente lineal hasta el punto de fluencia del acero. “Cuando el acero fluye, se presenta un gran incremento en la curvatura para aproximadamente el mismo momento flector. El momento va creciendo lentamente y luego baja hasta la falla, en el instante en que el concreto llega a la deformación unitaria última de εcu” [10].

Fig. 2. Diagrama de deformaciones, sección de concreto reforzado,
Fuente: Autores.

D. Análisis No-Lineal

Un análisis lineal es aquel donde se parte de la suposición que los elementos cumplen con una proporcionalidad entre los esfuerzos y las deformaciones unitarias. Por lo tanto, hay una correlación entre las fuerzas externas y los desplazamientos que ocurren en la estructura, es decir: {F} = [k] {D}. F y D son los vectores fuerza y desplazamiento respectivamente, y [k] hace las veces de una constante de proporcionalidad que en este caso será la matriz de rigidez (Ley de Hooke). En este tipo de análisis se puede estar en el rango elástico o el inelástico y de todas formas se asume que la linealidad se conserva. Las ecuaciones de equilibro se obtienen de la geometría no deformada es decir en su estado inicial y por esto recibe el nombre de análisis de primer orden [11].

Por otra parte, se encuentra el análisis no lineal, un análisis más completo que involucra aspectos importantes que varían sustancialmente al incremento de esfuerzos en la estructura. En este tipo de análisis como su nombre lo indica, ya no existe la proporcionalidad y por lo tanto se pierde la linealidad. Esto tiene una fácil explicación, y es que cuando la estructura transita hacia el campo inelástico empieza a haber una degradación en la rigidez y de la geometría de las secciones. Esta degradación empieza a incrementar hasta que aparece la primer “rotula plástica”, la cual indica que la sección entró al campo inelástico (el acero empieza a fluir), de modo que la sección ha alcanzado su máxima resistencia y continua solo deformándose (hay rotación).

Las ecuaciones de equilibrio en el análisis no lineal se obtienen a partir de una geometría deformada inicial. Esta geometría será un punto de partida para un nuevo análisis con incrementos de carga, con el cual se obtendrá otra geometría deformada la cual servirá de base para el siguiente análisis. De esta manera secuencial se continua hasta llegar a un nivel deseado de precisión. Por esta razón se llama análisis de segundo orden [12].

E. Pushover y Curva de Capacidad

“Es una técnica simple y eficiente que sirve para estudiar la capacidad y la relación entre resistencia-deformación de una estructura bajo una distribución esperada de fuerzas inerciales” [13]. Este análisis se realiza aplicando cargas horizontales estáticas de manera progresiva, hasta que la estructura llegue al colapso. Todo esto con el fin de notar cambios característicos que con un análisis lineal es imposible ver. En cada incremento de carga se registra el valor del cortante en la base y el desplazamiento en la cubierta, y con la unión de estos puntos se forma la curva de capacidad (Fig. 3) [14], [15].

Fig. 3. Curva Típica de Capacidad.
Fuente: [16].

F. Método del Espectro de Capacidad ATC-40

Es un procedimiento de análisis no lineal estático desarrollado por el ATC-40 de 1996, donde su finalidad es encontrar el punto de desempeño de la estructura, mediante una representación gráfica que consta de la intersección de dos curvas: la curva de capacidad de la estructura idealizada y el espectro de demanda sísmica del sitio [16], [17].

El punto de desempeño representa el máximo desplazamiento esperado para una demanda sísmica. Esto implica que se considera la estructura con su rigidez degradada, efecto del comportamiento inelástico en cada uno de sus elementos [18].

Para empezar, es necesario convertir los puntos de la curva de capacidad, que están en términos de cortante versus desplazamiento en la cubierta, y pasarlos al formato ADRS, Sa vs. Sd (Acceleration-Displacement Response Spectra). Para hacer la conversión, son necesarias las siguientes ecuaciones:

Donde PF1 es el factor de participación modal para el primer modo de vibración, α1 es el coeficiente de masa modal para el primer modo de vibración, wi/g la masa asignada al nivel i, Φi1 es la amplitud del primer modo en el nivel i, es la amplitud del modo 1 a nivel de cubierta. N es el nivel más alto de la estructura, V es el cortante en la base, W es el peso muerto de la estructura más la carga viva o un porcentaje de ella si se requiere, Δcubierta es el desplazamiento en la cubierta, g es la aceleración de la gravedad, Sa es la aceleración espectral y por último Sd es el desplazamiento espectral. Debe idealizarse la curva de capacidad en una curva bilineal, que represente de manera correcta el comportamiento real de la estructura.

Posteriormente se debe convertir el Espectro de Diseño de sitio que está en un formato Sa vs. T, con (12):

El amortiguamiento tiene importancia cuando el sismo lleva a la estructura al rango in­elástico. Para estos casos el espectro de demanda sísmica debe ser reducido, considerando un nuevo amortiguamiento denominado amortiguamiento histerético. El amortiguamiento hister­ético es el amortiguamiento que se produce luego de que los elementos disipen la energía a través de ciclos histeréticos. En la siguiente imagen se puede observar el espectro de demanda sísmica al ser considerado el amortiguamiento histérico (Fig. 4).

Fig. 4. Espectro de Demanda Reducido.
Fuente: [16].

Donde es el factor de reducción espectral en el rango de aceleración constante, es el factor de reducción espectral en el rango de velocidad constante, βeff es el amortiguamiento viscoso efectivo (el numero 5 significa que se tiene en consideración un amortiguamiento del 5%), βo es el amortiguamiento histerético en términos de amortiguamiento viscoso, ay es la aceleración espectral en el punto de fluencia de la curva idealizada, dy es la deformación espectral en el punto de fluencia de la curva idealizada, api es la aceleración espectral en el punto de desempeño de la curva idealizada y dpi es la deformación espectral en el punto de desempeño de la curva idealizada.

k es un coeficiente de corrección que depende del comportamiento de la estructura en cuanto su sistema de resistencia. También depende de la duración del sismo y de βo (Tabla 1).

Tabla 1. Calculo del Coeficiente de Corrección k.

Tipo de comportamiento estructural

β0

k

Tipo A

≤ 16.25

1

> 16.25

1.13 – (0.51*(ay*dpi-dy*api))/(api*dpi)

Tipo B

≤ 25

0.67

> 25

0.85 – (0.45*(ay*dpi-dy*api))/(api*dpi)

Tipo C

-

0.33 

Fuente: [16].

La clasificación del tipo de comportamiento estructural se realiza siguiendo la Tabla 2.

Tabla 2. Tipo de Comportamiento Estructural.

Duración del sismo

Estructura nueva

Estructura existente promedio

Estructura existente antigua

Corta

Tipo A

Tipo B

Tipo C

Larga

Tipo B

Tipo C

Tipo C

Fuente: [16].

Por último, es necesaria la aplicación de un proceso iterativo, donde la intersección del espectro de demanda reducido y el punto último de la curva de capacidad idealizada será el punto de desempeño de la estructura.

G. Métodos para calcular el coeficiente de capacidad de disipación de energía (R)

1) Método de Newmark y Veletsos

La primera teoría para determinar R fue desarrollada por Newmark y Veletsos en 1960 con base en el principio de igual desplazamientos. Estos investigadores plantearon que el co­eficiente de disipación de energía dependía netamente del periodo fundamental de la estructura. A pesar de ser una teoría antigua, aun se sigue teniendo en cuenta sus resultados para periodos cortos y largos [19], [20].

Para periodos T = 0 (17):

Para periodos cortos 0.12 seg ≤ T ≤ 0.5 seg (18):

Para periodos moderados 0.5 seg ≤ T ≤ 1 seg (19):

Para periodos largos T > 1 seg (20):

Donde la ductilidad µ es expresada como (21):

2) Método de NEHRP

La propuesta hecha por el NEHRP en 2003 [23] y validada y sostenida nuevamente en 2009 [24] fue hecha teniendo en cuenta la curva que plantea el comportamiento de una estructura ante una carga horizontal. El valor del R se calcula comparando el comportamiento elástico de la estructura con el punto donde se presenta la primer rotula plástica [1].

3) A partir del punto de desempeño

A partir de la curva de capacidad de la estructura y el espectro de diseño, se obtiene el punto de desempeño de la estructura. Se debe considerar el amortiguamiento adicional generado por los ciclos histeréticos de los elementos en el rango plástico. El punto de desempeño representa el desplazamiento y el cortante sísmico presentado durante el sismo de diseño. Con el desempeño sísmico, la demanda y la capacidad es posible calcular el coeficiente R. Donde la relación entre el cortante estático VE y el cortante de fluencia de la curva bi-lineal Vy, es el coeficiente de capacidad de disipación de la energía de la estructura [18].

III. Metodologia

Para esta investigación se eligieron siete pórticos, cada uno con un periodo fundamental diferente (Fig. 5).

Fig. 5. Pórticos Elegidos.
Fuente: Autores.

A. Diseño de Pórticos

Siguiendo la normativa, con el método de la resistencia última se realizó el diseño de los siete pórticos [21]. Se cumplió con la verificación de las cuantías máximas y mínimas de acero en las secciones del pórtico, además de las estipulaciones mencionadas en el Capítulo C.21 para estructuras con capacidad especial de disipación de energía [21].

Según el Capitulo B [21] se asignaron las cargas muertas y vivas para los pórticos elegidos. Para el pórtico 1, la distribución de carga vertical: muerta y viva respectivamente, se ilustra en la Fig. 6 y Fig. 7.

Fig. 6. Ilustración de Carga Muerta en Pórtico 1.
Fuente: Autores.
Fig. 7. Ilustración de Carga Viva en Pórtico 1.
Fuente: Autores.

La carga sísmica fue modelada mediante el espectro de diseño propuesto en el Capítulo A [21]. Se calculó el espectro para los factores de sitio de la ciudad de Popayán para un suelo tipo E. La Fig. 8 presenta el espectro de diseño usado para el Pórtico 1.

Fig. 8. Espectro de diseño (sin R).
Fuente: Autores.

En la Tabla 3 se encuentra un ejemplo del diseño resumido del Pórtico 1, usando el método de resistencia.

Tabla 3. Diseño del Pórtico 1.

Elemento

Dimensión

Viga Nivel 1

30 cm × 40 cm

Viga de Cubierta

25 cm × 30 cm

Columna

30 cm × 30 cm

Elemento

Acero Longitudinal

Acero Transversal

Viga Nivel 1

Positivo

3 № 5

1 № 3 C/A 6 cm

Negativo

3 № 5 y 1 № 3

Viga de cubierta

Positivo

3 № 3

1 № 3 C/A 6 cm

Negativo

2 № 4

Columna

 

8 № 5

1 № 4 C/A 5 cm

Fuente: Autores.

B. Articulaciones Plásticas

Luego de obtener el diseño de las secciones transversales, se calcularon los diagramas momento vs curvatura, que caracterizaron las rotulas plásticas. Las gráficas momento vs curvatura se calcularon mediante dos métodos. Un método analítico a través de la programación simple en Excel, y otro usando el software XTRATC. Es importante aclarar que el punto máximo de deformación del concreto se calculó con la ecuación de Corley. Los resultados obtenidos para esta etapa del procedimiento se encuentran contenidos en la Tabla 4.

Donde ρs es la relación del volumen del refuerzo transversal al volumen del núcleo de concreto, b es el ancho del elemento, z la distancia de la sección critica hasta el punto de inflexión y fyh es el esfuerzo de fluencia.

Tabla 4. Articulaciones Plásticas Portico1.

Viga

Tipo

Momento Positivo

Momento Negativo

Nivel 1

My (kN-m)

77.454

84.237

Φy (1/m)

0.02

0.011

Mu (kN-m)

87.632

98.216

Φu (1/m)

0.536

0.522

Viga

Tipo

Momento Positivo

Momento Negativo

Cubierta

My (kN-m)

20

22.879

Φy (1/m)

0.0151

0.011

Mu (kN-m)

21.831

25.642

Φu (1/m)

0.532

0.526

Columna

Tipo

Momento

Columna

My (kN-m)

88.851

Φy (1/m)

0.0141

Mu (kN-m)

93.301

Φu (1/m)

0.153

Fuente: Autores.

C. Análisis estático no-lineal, Pushover

Se siguieron dos procedimientos, un Pushover Simplificado ejecutado de forma analítica y usando un modelo elástico perfectamente plástico. Y otro análisis de Pushover obtenido por SAP2000 ingresando las propiedades de las rotulas plásticas hasta su momento y curvatura últimos.

1) Pushover Simplificado

Como un método analítico para comparar los resultados obtenidos con SAP 2000, se realiza este método. Brevemente consistió en aplicar cargas laterales al pórtico y visualizar que nudo estaba más propenso a pasar a su fase plástica. Así por su parte se ingresaron manualmente “relases” en el programa SAP2000, con el fin de simular la presencia de una rotula plástica, es decir, paso a paso se fue retirando de los nudos su condición de resistir momento.

El método usó dos estados de carga, un estado de carga gravitacional y otro de carga lateral. La carga lateral elegida de manera arbitraria, con el único requisito de tener un incremento lineal al ir ascendiendo los pisos, simulando el primer modo de vibración de la estructura. La carga gravitacional, se eligió como la combinación 1.2 carga muerta + 1.6carga viva, extraída del Reglamento Colombiano de Construcción Sismo Resistente [21].

Se sabía que existía una combinación de carga gravitacional y carga horizontal, que sumadas entre sí llevarían a una sección del pórtico a alcanzar su momento resistente plástico. Con la condición de la no variación de la carga gravitacional a través del tiempo, se estableció que para generarse la primer rotula plástica y alcanzar su momento plástico debía incrementarse solamente el efecto de carga lateral. Este incremento se identificó en esta investigación con el símbolo Δ, y satisface a (23).

Siendo Mp el momento plástico, Mg el momento gravitacional y Ml el momento lateral. Para saber qué momento plástico usar (positivo o negativo) debía analizarse el signo del momento de carga lateral ya que es el momento que varía a través del tiempo. La sección con el menor valor Δ es la que estaba más cerca de llegar a su momento plástico.

Al final volvió a calcularse el factor de amplificación Δ y con él, los nuevos momentos de carga lateral que conllevaran a examinar que otra sección entraría en su estado plástico. Al mismo tiempo se registró el desplazamiento en la cubierta para cada estado de carga.

Por último, el producto entre el cortante de la estructura para el estado de carga lateral y el Δ registrado en cada paso, se acumuló simbolizando el cortante en cada incremento de carga. Lo mismo se hizo con el desplazamiento, multiplicando el desplazamiento en cubierta registrado en cada estado por su respectivo Δ. Cada par de valores acumulados (cortante y desplazamiento) representaría un punto en la curva de capacidad. La curva de capacidad obtenida para el Pórtico 1 se presenta en la Fig. 9.

Fig. 9. Curva de Capacidad, Pushover Simplificado.
Fuente: Autores.

2) Pushover con SAP 2000

Teniendo como base las propiedades de las rotulas plásticas calculadas por el programa analítico y XTRACT, se introdujeron los valores al programa SAP2000, y se realizó el análisis no lineal estático. Inicialmente, con la intención de comparar los resultados con el método anterior se limitó el análisis hasta el desplazamiento ultimó de la Fig. 9. En la Fig. 10 se presentan las curvas de capacidad obtenidas por el Pushover Simplificado y el Pushover son SAP2000.

Fig. 10. Comparación de Curvas de Capacidad.
Fuente: Autores.

En el rango desplazamientos presentado en la Fig. 10, las curvas son aproximadas entre sí. Como previamente se explicó, el método simplificado solo llega hasta la plastificación de la última sección y no permite visualizar el mecanismo de colapso completo de la estructura. En cambio, el programa SAP2000 presenta un comportamiento de la estructura más completo, muestra su mecanismo de colapso y la forma en que la estructura llega al momento último y la deformación última. Con el método simplificado, no se puede considerar el comportamiento plástico de las secciones, sino que se limita a considerar que la primera sección en plastificarse continúa deformándose sin romper hasta que se forme la última rotula plástica. Por lo anterior, con este método no es posible obtener la capacidad total de la estructura antes de llegar al colapso, caso contrario a los resultados obtenidos con SAP2000 o cualquier otro programa que permita considerar las gráficas momento vs. curvatura hasta su deformación última teórica.

Para los cálculos posteriores, era necesario contar con la totalidad de la curva de capacidad, por tal motivo se usaron las curvas de capacidad obtenidas con el programa SAP2000.

D. Métodos usados para calcular R

1) Método del Espectro de Capacidad ATC-40

La curva de capacidad generada por el programa SAP2000 se pasó a formato ADRS, y junto con la demanda sísmica se encontró el punto de desempeño y el coeficiente de capacidad de disipación de la energía.

El método del Espectro de Capacidad ostulado en el ATC-40 nos muestra el procedimiento para la conversión de unidades a formato ADRS. Para efectuar dicho procedimiento fue necesario obtener las variables de entrada extraídas del análisis modal de cada pórtico.

Mediante el programa SAP2000 se extrajeron las variables de entrada como: amplitud de modo1 en nivel de cubierta, el factor de participación modal y el coeficiente de masa modal. En la Fig. 11 se presenta el procedimiento para estructuras muy rígidas, donde su punto de desempeño se encuentra en la zona elástica. Además, como contraparte en la Fig. 12 se presenta la aplicación del método para estructuras más esbeltas.

Fig. 11. Método del Espectro de Capacidad Pórtico 1.
Fuente: Autores.
Tabla 5. Resultados Método del Espectro de Capacidad, Pórtico 1.

Punto de Desempeño

Sa

Sd

V (kN)

D(m)

0.45

0.026

70.4

0.0374

Fuente: Autores.
Fig. 12. Método del Espectro de Capacidad Pórtico 2.
Fuente: Autores.
Tabla 6. Resultados Método del Espectro de Capacidad, Pórtico 2.

Punto de Desempeño

Punto de Fluencia

Sa

Sd

V (kN)

D(m)

Sa

Sd

V (kN)

D(m)

0.33

0.18

129.433

0.26

0.3

0.035

117.666

0.0499

Fuente: Autores.

2) Método de Newmark & Veletsos

Para este método la curva de capacidad debe idealizarse, donde el máximo cortante que soporta la estructura es el cortante de fluencia. En la Fig. 13 se presenta la curva idealizada obtenida para el primer pórtico.

Fig. 13. Método de Newmark y Veletsos Pórtico 1.
Fuente: Autores.

Con las gráficas obtenidas y aplicando (17), (18), (19) y (20), fue posible calcular el coeficiente de capacidad de disipación de la energía.

3) Método NEHRP

El coeficiente de capacidad de disipación de la energía, es el resultado de la relación entre el cortante elástico VE y el cortante Vs, que es el cortante en el punto que aparece la primera rotula plástica. Consecutivamente en la Tabla 7, se encuentran resumidos los resultados obtenidos para todos los pórticos analizados.

Tabla 7. Resultados Método NEHRP.

Pórtico

Ds (m)

Vs (kN)

VE (kN)

1

0.0118

40.77

148.56

2

0.224

74.19

534.886

3

0.285

111.429

3.9

4

0.0416

84.137

567.912

5

0.0568

125.917

1004.225

6

0.142

214.512

2284

7

0.208

426.018

2145.697

Fuente: Autores.

IV. Resultados

La Tabla 8 nos resume los resultados obtenidos en esta investigación. La Fig. 14, nos muestra el comportamiento de los métodos, teniendo como punto de comparación el periodo fundamental de cada estructura.

Tabla 8. Resultados.

Coeficiente de Capacidad de Disipacion de la Energia

Pórtico

Espectro de Capacidad

Nehrp

Newmark & Veletsos

Nsr-10

Periodo (S)

1

2.11

4.107

3.64

7

0.28

2

4.55

7.21

6.58

7

0.42

3

2.47

3.9

4.109

6.3

0.29

4

5.58

6.75

7.93

7

0.59

5

6.83

7.98

11.744

7

0.7

6

9.94

10.65

15.09

7

1.63

7

5.063

5.037

19.89

7

2.188

Fuente: Autores.
Fig. 14. Comparación del coeficiente R vs el Periodo Fundamental.,
Fuente: Autores.

El método de Newmark y Veletsos, se dispersa de los demás resultados a medida que el periodo fundamental aumenta. Esto se debe a que, con este método, el coeficiente R es calculado únicamente considerando la ductilidad de la estructura y se ignoran otras variables como la sobre-resistencia y la redundancia.

El Espectro de Capacidad presentó un inconveniente notorio al usarlo en estructuras muy rígidas con periodos fundamentales inferiores a 0.3 seg. El punto de desempeño se localizó en la rama elástica de la curva de capacidad, y por tal motivo no fue posible construir una curva bi-lineal. Lo anterior, debido a que la estructura aún no había experimentado desplazamientos plásticos, lo que obligó a tomar el punto de desempeño como el valor del cortante de fluencia. Sin embargo, el resultado coincide con el comportamiento que se espera de una estructura con periodos bajos, la cual, debido a su alta rigidez y a tener su desempeño en el rango elástico, tiene poca capacidad para disipar energía. Este método demostró que estructuras aporticadas en concreto reforzado de hasta 6 pisos (T ≈ 0.1 * Número de pisos), disipan menos energía de la que se asume en el diseño asegurando los requisitos de ductilidad. El método mostró una proporcionalidad con el periodo fundamental en estructuras de periodos cortos, es decir, a medida que el periodo fundamental de la estructura aumenta, su disipación de energía también incrementa. Puede inferirse de acuerdo a los resultados obtenidos, que la disipación de la energía para este tipo de pórticos es aproximadamente el periodo fundamental dividido 0.1, RT/(0.1).

El método NEHRP no mostró proporcionalidad, pero si muestra confiabilidad en sus resultados. Se puede inferir que, para este método las estructuras con un periodo comprendido entre 0.4 y 0.7 segundos son factibles diseñarlas con un R igual 7 como el Reglamento Colombiano de Construcción Sismo Resistente lo establece [21].

El Pórtico 3 presenta un grado de irregularidad geométrica, que al parecer no afectó de manera trascendente la disipación de la energía. Se obtuvo por el método del Espectro de Capacidad, el método NEHRP y Newmark y Veletsos una gran aproximación a los resultados obtenidos en el Pórtico 1, que tiene aproximadamente el mismo periodo de vibración. Con estos resultados se podría insinuar que, para efectos de esta investigación, la disipación de la energía depende fundamentalmente del periodo de vibración de la estructura.

El Pórtico 7 demuestra que, para estructuras con periodos moderados, no existe proporcionalidad, caso contrario a estructuras con periodos cortos. Esto debido a que, para estructuras con periodos moderados, la pseudo- aceleración presentada será menor, reduciendo a su vez el cortante elástico.

V. Conclusiones

Fue posible verificar la dependencia que existe entre el periodo fundamental de una estructura y el grado de disipación de energía de la misma. Esta investigación inició considerando los múltiples cuestionamientos que genera la selección del coeficiente de disipación de energía (R) en los códigos de diseño. Lo anterior, debido a que, para cualquier diseño, se estaría presumiendo que una estructura muy rígida (periodos de vibración bajos) podría desarrollar la misma ductilidad que una estructura mucho más flexible. Con los resultados obtenidos en esta investigación es posible cuestionar esta suposición de diseño, argumentado que, según el comportamiento dinámico de una estructura, la misma podrá disipar mucha o poca energía sísmica. Siendo más visible el impacto de los resultados en estructuras muy rígidas, a las cuales se le estaría exigiendo con los códigos de diseño requisitos de ductilidad para disipar la energía que la misma estructura es incapaz de desarrollar debido a su alta rigidez.

Para estructuras más flexibles (periodos de vibración altos) es recomendable continuar la investigación, considerando los efectos de redundancia. En esta investigación y con los pórticos modelados, los métodos del Espectro de Diseño y de NEHRP presentan una posible reducción del coeficiente R para periodos mayores a 1.5 segundos, lo cual amerita un estudio más profundo para verificar dicha tendencia en los resultados.

El método propuesto por Newmark y Veletsos debe ser complementado por el cálculo de variables que afectan la disipación de la energía, como la sobre-resistencia y la redundancia, para de esta forma compararse con los resultados de otros métodos. Este método se basa solo en el cálculo de la disipación de la energía por medio de la ductilidad de la estructura. Aunque la disipación de la energía de una estructura está en función de la ductilidad, no puede considerarse igual a ella.

El método NEHRP es un método valido para el cálculo de la disipación de energía de una estructura. Sus resultados son válidos y certeros, ya que sus resultados tienen una tendencia similar a los obtenidos por el método del Espectro de Capacidad, además su fácil aplicación lo hace más práctico. Sin embargo, este método es limitado por la primera aparición de una rotula plástica, denominando este cortante como el cortante plástico de toda la estructura e ignorando el comportamiento completo de la misma. La aparición de la primera rotula plástica es un factor decisivo en el análisis de la disipación de energía de la estructura, pero es importante conocer todo el mecanismo de plastificación de la estructura, ya que no es la única sección que experimentará deformaciones plásticas.

El método del Espectro de Capacidad nos lleva a conocer el desempeño de la estructura, es decir, la combinación de cortante y desplazamiento que la estructura tiende a experimentar en presencia del sismo de diseño. Por tal motivo, el método sugiere que el punto de desempeño es el punto último de capacidad, ya que, bajo condiciones normales de diseño, la estructura no percibirá solicitaciones mayores. Este método es el más completo de todos, puesto que, para conocer la disipación de energía de la estructura es importante conocer variables como el espectro de diseño y el amortiguamiento histerético de la estructura. Su mayor limitación incurre en analizar estructuras demasiado rígidas, donde su punto de desempeño se encuentra en la zona elástica y es imposible la formación de una curva bi-lineal. En estos casos este método puede ser demasiado extremo y castigar la disipación de energía con valor muy bajo, por lo cual para estructuras muy rígidas sería más recomendable aplicar el método NEHRP.

Financiamiento

Artículo de investigación científica derivado del proyecto de investigación “Calculo del coeficiente de capacidad de disipación de la energía en pórticos regulares con diferente altura.”, financiado por la “Universidad del Cauca”. Año de inicio: 2018, año de finalización: 2019.

Referencias

[1] D. Valencia y G. Valencia, “Evaluación del coeficiente de disipación de energía, R, para algunos tipos de estructuras de acero,”  Ing Inv,vol. 28, no. 1, pp. 4149, 2008. Disponible en https://www.virtualpro.co/biblioteca/evaluacion-del-coeficiente-de-disipacion-de-energia-r-para-algunos-tipos-de-estructuras-de-acero

[2] O. Ramírez, “El factor de modificación de respuesta, R, para edificios de período corto. ,” RIDTEC, vol. 1, no. 1, pp. 918, 2002. Disponible en https://revistas.utp.ac.pa/index.php/id-tecnologico/article/view/113

[3] M. Prada, J. Carrillo y C. Gelvéz, “Variación de las cuantías de acero de refuerzo de muros de concreto para las categorías de disipación de energía definidas en NSR-10,” Rev Ing MED, vol. 16, no. 30, pp. 2947, 2017. https://doi.org/10.22395/rium.v16n30a2

[4] J. Vielma, W. Lobo y P. Rivero, “Factores de reducción de respuesta por ductilidad de estructuras con comportamiento no lineal,” Rev Ing UC, vol. 12, no. 2, pp. 1422, 2005. Disponible en http://seer.upf.br/index.php/rsaee/article/view/321

[5] J. Vielma, W. Lobo y M. Mulder, “Procedimiento alternativo para determinar el factor de reducción de respuesta para edificios dúctiles de concreto armado,” Rev GT, vol. 19, no. 1, pp. 4355, 2017. http://dx.doi.org/10.13140/RG.2.2.24840.11529

[6] R. Aguiar, D. Mora y M. Rodríguez, “Diagrama momento-curvatura y momento rotación para elementos de hormigón armado y acero con ASCE/SEI 41 y sistema de Computación CEINCI-LAB,” Rev Cienc, vol. 17, no. 2, pp. 191228, 2015. Disponible en https://journal.espe.edu.ec/ojs/index.php/ciencia/article/view/520

[7] M. J. Priestley, Seismic Desig and Retrofit of Bridges. CA, USA, UCLA, 1996.

[8] R. Park, M. Priestley & W. Gill, “Ductility Square Confines Concrete Columns,” ASCE, vol. 108, no. 4, pp. 929950, 1982. https://doi.org/10.1061/JSDEAG.0005933

[9] D. Gómez, “Evaluación del coeficiente de disipación de energía R en edificaciones de concreto reforzado con disipadores de energía viscosos ubicados en zona de amenaza sísmica alta,” Tesis Msc, dpto Ing Civ Agr, UNAL, BO, CO, 2020. Disponible en https://repositorio.unal.edu.co/handle/unal/78696

[10] R. Jaramillo y C. Riveros, “Análisis no lineal dinámico tridimensional de edificios en concreto reforzado sometidos a los registros del sismo de Quetame,” Tesis pregrado, dpto Ing Civ, PUJ, BO, CO, 2011. Disponible en http://hdl.handle.net/10554/7416

[11] ]R. Maldonado, “Sensibilidad y seguridad de estructuras de Hormigón en régimen no lineal,” Tesis Msc, dpto Estr, UPC, BCN, ES, 2012. Recuperado de https://upcommons.upc.edu/bitstream/handle/2099.1/14777/TFM%20-%20Ronnie%20Antonio%20Maldonado%20Tapia.pdf

[12] J. Aristizabal, “Análisis de primer y segundo-orden y estabilidad de pórticos con conexiones semirrígidas: método de Hardy Cross (i-teoria),” Rev UNAL, vol. 78, no. 167, pp. 103111, 2011. Disponible en https://revistas.unal.edu.co/index.php/dyna/article/view/25772

[13] R. Bonett, “Vulnerabilidad y riesgo sísmico de edificios. Aplicación a entornos urbanos en zonas de amenaza alta y moderada,” Tesis PhD, dpto Ing Terr, UPC, BCN, ES, 2003. Disponible en http://hdl.handle.net/10803/6230

[14] H. Sinisterra, “Determinación del desempeño sísmico para edificios en pórticos de concreto reforzado diseñado bajo la norma sismo resistente C.C.C.S.R.84,” dpto Ing Civ, PUJ, Tesis, CA, CO, 2017. Disponible en https://repository.javeriana.edu.co/

[15] C. González, “Análisis estático no lineal (pushover) de estructura aporticada de hormigón armado con diferentes grados de ductilidad,” Tesis Msc, dpto Est, UPV, VAL, ES, 2018. Disponible en http://hdl.handle.net/10251/100307

[16] Seismic Evaluation and retrofit of concrete buildings, ATC-40, ATC, Applied Technology Council, CA, USA, 1996. Recuperado de https://www.atcouncil.org/pdfs/atc40toc.pdf

[17] Y. Vargas y L. Pujades, “Evaluación probabilista de la capacidad, fragilidad y daño sísmico de edificios de hormigón armado,” RIMNI, vol. 29, no. 2, pp. 6378, 2013. Disponible en https://www.sciencedirect.com/science/article/pii/S0213131513000175

[18] H. Arroyave, “Evaluación del coeficiente de capacidad de disipación de energía dado por el código colombiano de diseño sísmico de puentes de 1995, para columnas y pórticos en puentes típicos,” Tesis Msc, dpto Ing Civ, UNAL, BO, CO, 2013. Disponible en https://repositorio.unal.edu.co/handle/unal/50829

[19] R. Rochel.Análisis y diseño sísmico de edificios, MED, CO, EAFIT, pp. 8492, 2012.

[20] L. Daza-Duarte, “Nuevo enfoque para determinar el factor de modificación de respuesta,” RIDNAIC, vol. 3, no. 1, pp. 115, 2003. Disponible en https://www.scipedia.com/public/Daza_2003a#:~:text=El%20factor%20de%20Modificaci%C3%B3n%20de%20Respuesta%2C%20normalmente%20conocido%20como%20%22factor,evaluaci%C3%B3n%20estructural%20de%20un%20edificio

[21] Reglamento Colombiano de Construcción Sismo Resistente, NSR-10, AIS, Minambiente, República de Colombia, Bo, CO, 2010. Recuperado de https://www.unisdr.org/campaign/resilientcities/uploads/city/attachments/3871-10684.pdf

[22] Diseño sísmico de edificios, NCH-433, INN, República de Chile, SA, CH. Recuperado de http://www.puntofocal.gov.ar/notific_otros_miembros/chl121_t.pdf

[23] BSSC, NEHRP recommended provisions for seismic regulations for new buildings and other structures. WA, USA: BSSC, FEMA P-2082, 2003. Recuperado de https://www.nehrp.gov/pdf/fema450provisions.pdf

[24] BSSC, NEHRP Recommended Seismic Provisions for New Buildings And Other Structures. WA, USA: BSSC, FEMA P-750, 2009. Disponible en https://www.wbdg.org/ffc/dhs/criteria/fema-p-750

Javier Alberto Nebrijo-Ramos. Universidad del Cauca (Popayán, Colombia). https://orcid.org/0000-0001-9453-9223

Yessica M. Menza Calambás. Universidad del Cauca (Popayán, Colombia). https://orcid.org/0000-0002-6136-9878