Evaluación sísmica de apoyos elastoméricos en puentes tipo viga cajón de concreto considerando condiciones de sitio

Seismic assessment of elastomeric bearings in concrete box girder bridges considering site conditions

DOI: https://dx.doi.org/10.17981/ingecuc.20.2.2024.12

Artículo de Investigación Científica.

Fecha de Recepción: 04/10/2022, Fecha de Aceptación: 30/07/2023.

Carolina Castaño-Agudelo E:\Users\aromero17\Downloads\orcid_16x16.png

Universidad de Antioquia. Medellín, (Colombia)

carolina.castanoa@udea.edu.co

Carlos Alberto Riveros-Jerez E:\Users\aromero17\Downloads\orcid_16x16.png

Universidad de Antioquia. Medellín, (Colombia)

Kyushu University, Fukuoka, (Japan)

carlos.riveros@udea.edu.co

Alvaro Viviescas-Jaimes E:\Users\aromero17\Downloads\orcid_16x16.png

Universidad Industrial de Santander. Bucaramanga, (Colombia)

alvivija@uis.edu.co

To cite this paper

C. Castaño-Agudelo, C. Riveros-Jerez & A. Viviescas-Jaimes, “Seismic assessment of elastomeric bearings in concrete box girder bridges considering site conditions,” INGE CUC, vol. 20, no. 2, 2024. DOI: https://dx.doi.org/10.17981/ingecuc.20.2.2024.12

Resumen

Introducción: Los puentes son estructuras que demandan grandes inversiones y son vitales para el desarrollo económico de cualquier país, su adecuado desempeño, durante y después de un sismo de magnitud considerable, es clave para atender emergencias derivadas del evento y garantizar una rápida recuperación económica de las zonas afectadas. En el contexto nacional, los apoyos elastómeros reforzados son los elementos de conexión más usados entre la superestructura y la subestructura, debido a su bajo costo en comparación con otros sistemas disponibles, no obstante, los requerimientos actualmente vigentes en la normativa colombiana consideran exclusivamente cargas muertas y vivas verticales en estado de servicio, sin que se presenten requerimientos adicionales de evaluación del desempeño sísmico de este tipo de apoyos.

Objetivo: Se busca comparar la norma de diseño de puentes Colombiana y el Eurocodigo para el diseño de apoyos elastoméricos, con el fin de determinar la normativa que produce elastómeros con mejor desempeño durante eventos sísmicos.

Metodología: Se desarrollaron modelos computacionales de puentes tipo viga cajón (representativo de Colombia). Los puentes modelados con longitudes constantes, presentan variaciones en la posición y altura de las columnas de los apoyos intermedios y además en la curvatura horizontal del puente. Los modelos incluyen los efectos de la rigidez de cada tipología de elastómero diseñado asociado a cada normativa, de los análisis se obtienen y comparan los desempeños de los dispositivos ante eventos sísmicos considerando análisis tiempo historia.

Resultados: Se determinó el proceso de diseño y por ende la normativa que produce elementos de conexión tipo apoyos elastómeros con mejor comportamiento ante eventos sísmicos en términos de desplazamientos.

Conclusiones: Se evidencian menores desplazamientos y por ende mejor comportamiento sísmico para las dimensiones de los elementos diseñados por el Eurocódigo.

Palabras clave

Puente tipo viga cajón de concreto; Apoyo elastomérico; Desempeño sísmico; Análisis tiempo historia.

Abstract

Introduction: Bridges are structures that require significant investments and are vital for the economic development of any country; their proper performance during and after an earthquake of considerable magnitude is critical to responding to emergencies arising from the event and ensuring rapid economic recovery of the affected areas. In the national context, reinforced elastomeric bearings are the most used connection elements between the superstructure and the substructure due to their low cost compared to other available systems. However, the requirements in the Colombian bridge standard exclusively consider dead loads and live loads in the serviceability limit state without additional requirements for evaluation of the seismic performance of this type of connection elements.

Objective: The study’s primary goal is to compare the Colombian bridge standard and Eurocode regarding elastomeric bearings design guidelines to determine the standard that produces an elastomeric bearing design with better performance regarding seismic events.

Method: Considering the most common bridge typology within the Colombian context, computational models of box girder bridges were developed with constant lengths but with variations in the position and height of the intermediate supports. The numerical models include the effects of the stiffness contribution of each type of elastomeric bearing regarding bridge standard guidelines, allowing the comparison of the performance of the elastomeric bearings during seismic events.

Results: It was possible to determine the design guidelines and considerations that produce elastomeric bearings with better performance during seismic events regarding displacements.

Conclusions: Lower displacement values and, therefore, better seismic performance are evident for the dimensions of the elastomeric bearings designed by the Eurocode.

Keywords

Concrete box girder bridge, Elastomeric bearing, Seismic performance, Time history analysis

INTRODUCCIÓN

Bridges are essential structures for connecting communities and overcoming geographical obstacles and mainly consist of abutments and intermediate supports; the first are elements that guarantee the continuity of the bridge with the access road, and the second are intermediate elements whose purpose is to control the maximum possible span length. The abutments are essential, but intermediate supports depend mainly on the bridge’s construction material and size. On the other hand, it is also possible to generally state that bridges consist of 3 main components: the superstructure, the substructure, and the connecting elements. The superstructure directly resists the action of vehicular and pedestrian live loads, while the substructure allows the transfer of dead and live loads from the bridge to the bridge foundation. Consequently, connecting elements are mechanical devices that enable the transfer of loads from the superstructure to the substructure, where the choice of the type of connecting element will depend on its applicability and its ability to handle displacements and rotations adequately. The available connection elements are rocker bearings, sliding plate bearings, POT rubber bearings, disc bearings, spherical bearings, and elastomeric bearings. However, in the last 50 years, there has been a dramatic increase in the use of elastomeric bearings as connecting elements. Interestingly, the American Association of State Highway and Transportation Officials AASHTO [1] first presented a design methodology for elastomeric bearings in 1961 [2].

Elastomeric bearings are manufactured by joining sheets of elastomer pads (natural or synthetic) and steel; these layers are vulcanized with heat and pressure, seeking to generate a solid structure without gaps. This configuration is designed to support horizontal and vertical movements by absorbing the translation of the superstructure through shear [3]. The Colombian Bridge Design Standard CCP 14 [4] indicates that vertical loads are supported by rubber compression and movements-rotations by deformation. Thus, CCP 14 provides methods for designing elastomeric bearings that consider the requirements for non-impact service loads, translation, rotation, and temperature gradients for the service life design. Thus, CCP 14, in its article 14.6.5.3, specifies that the design of elastomeric bearings must be consistent with the bridge’s structural response during a seismic event. However, elastomeric bearings may be designed to withstand seismic or different extreme events in terms of horizontal loads, or if the elastomeric bearing is not required to be functional after the seismic or extreme event, retainers, dampers, or wider bearing zones must be provided to prevent the superstructure from falling off its supports. It is essential to highlight that CCP 14 requires adequate seismic behavior, but the design method proposed in CCP 14 needs to consider seismic loads.

Table 14.6.2-1 presented in CCP 14 prescribes that steel-reinforced elastomeric bearings must have adequate performance under the effects of vertical loads, transverse and longitudinal movements, and additionally under the impact of rotations around the longitudinal axis and transverse axis of the bridge. However, rotations related to the longitudinal axis of the bridge and resistance to longitudinal and transverse loads are only suitable for limited applications. In other words, the elastomeric bearing can work appropriately if the load and rotation requirements are adequate. However, in CCP 14, the resistance to longitudinal and transverse loads must be assumed longitudinally by the bridge abutments and transversely by shear keys to prevent bridge girders from falling off during earthquakes. It is essential to stress that the deformation capacity of elastomeric bearings under earthquake loads is not defined in CCP 14; it is only required that the shear deformation for service conditions does not exceed 50% of the height of the layers of the elastomeric bearing to prevent overturning at the edges and delamination due to fatigue (section 14.7.5.3.2 in CCP 14). Thus, static deformation capacity should not be compared with seismic demands. However, most existing design bridge standards only provide concise guidelines to quantify the allowable damage states for columns, leaving these specifications aside for the other bridge elements [5]. Such a feature is a constant in most bridge design standards, including the CCP 14, which requires the elastomeric bearing to be fixed when the lateral forces in service exceed one-fifth of the maximum vertical dead load for the design. It is essential to highlight that CCP14 recommends a friction factor between the elastomeric bearing and concrete of μ=0.20 (section C14. 8.3.1 in CCP 14).

However, the restrictions described above are solely due to the forces and deformations induced by vertical loads in the service state; however, since road bridges constitute the most critical parts of transportation networks, they should be designed to ensure their proper functioning during earthquakes, that is, factored loads or in limit states [6]. Such extreme limit states are not currently considered in CCP 14. For this reason, this article aims to review and complement the current process of the elastomeric bearing design through the incorporation of design procedures from other modern bridge standards, such as the Eurocode that does consider requirements for the adequate performance of elastomeric bearings during seismic events. Thus, this article approaches such limitation by modeling concrete box girder bridges with plan curvatures of 0.00°, 30.00°, and 60.00° considering different intermediate support positions. Following the design guidelines provided by CCP 14 and the Eurocode, the designed elastomeric bearings are analyzed to evaluate their seismic performance. The time history analysis is carried out using earthquake records scaled to the seismic conditions of Colombia and, more specifically, to those of the predominant Bogotá’s soil type defined as soil types C and D according to CCP 14. The comparison of the seismic performance for the selected bridge configurations is carried out in terms of displacements to evaluate the most appropriate elastomeric bearing design procedure that allows obtaining the lowest displacements in the center and at the ends of the bridge, which are selected because the center of the bridge is constant in all models. Conversely, the bridge-abutment interaction is considered at the ends of the bridge, allowing for the evaluation of the probability that the bridge will continue operating after an extreme seismic event.

PROBLEM STATEMENT

Designing bridges in Colombia implies significant challenges due to geographical obstacles and an increasing demand for connectivity between urban and rural areas. Consequently, safety, aesthetics, and durability must be carefully addressed without leaving aside economic considerations since bridges play a vital role in societies’ economic growth and well-being, leading to a significant investment in bridge design and construction worldwide [7]. The financial costs of a bridge’s planning, implementation, and construction must be considered in the early design stages. The selection of the structural configuration of the superstructure and substructure must consider accurate approximations of actual conditions during its operation stage by considering the structural configuration, environmental impact, construction materials, spatial location, and construction process. Thus, the adequate design of the elastomeric bearings is crucial to guarantee complete bridge functionality during its life span by assuring prompt recovery after a seismic event.

Due to thermal expansion and contraction, a bridge must allow longitudinal superstructure movement under service conditions. Additionally, rotation caused by dead load and deflection due to live load must be allowed, thus minimizing expensive maintenance interventions [8], which in some cases related to the complex replacement process of elastomeric bearings [9] when rehabilitation is required or when the failure occurs during the occurrence of a seismic event. These adverse conditions are likely to be anticipated from the design stage because the stiffness of the elastomeric bearing selected during the design stage significantly affects bridges’ dynamic and static response. Thus, it must be modeled and thoroughly evaluated during the structural design and construction. Interestingly, there are approximately 2,100 bridges in Colombia, 38% of which have elastomeric bearings [10], mainly due to their availability and economy, making them popular nationwide. Internationally speaking, they have been used for more than 50 years because they are cost-effective, easy to manufacture, have a combination of high rigidity in the vertical direction, as well as rotational and horizontal flexibility, in addition to having better performance against earthquakes than other types of traditional connecting elements [9], [6], [8], [11], [12] y [13].

The structural design of elastomeric bearings reinforced with steel is detailed in CCP 14 and AASHTO. However, the methods presented in the bridge standards mentioned above exclusively consider vertical stresses in the service limit state due to dead and live loads [14] but do not consider the performance of elastomeric bearings against lateral loads, such as wind, impact, and earthquakes. The CCP 14 indicates in its article 14.14.1 that in the extreme event limit state, the bridge owner may allow elastomeric bearings to act as fuses or to be subjected to irreparable damage as long as the loss of their section is prevented. However, CCP 14 also specifies in its article C.14.6.5.3 for the case in which the designer considers the elastomeric bearing response to be a fuse that such an alternative would require complete consideration of the forces, movements and details of the repair or replacement of the elastomeric bearings. CCP 14 also requires the bridge designer to confront the inherent difficulty of detailing an elastomeric bearing expecting to fail to be reliable at a predetermined load. This requires a remarkable degree of detailing of the elements of the superstructure and substructure so that they do not present structural failure when an elastomeric bearing reaches structural failure, additional information that is usually not presented in the engineering practice. Thus, considering the importance of elastomeric bearings for the proper functioning of bridges after an extreme event, they are likely to be designed to safely resist compression and shear stresses during extreme events [15]. According to the foregoing, elastomeric bearings correspond to the component of bridges that suffers the most significant structural damage when a considerable seismic event occurs [16]. In inspections carried out on bridges in the national context, structural failures in the elastomeric bearings are mainly related to the inclination of elastomeric bearing supporting surface, structural degradation due to impact loads, poor structural design, insufficient support length, inadequate elastomeric bearing dimension, absence of seismic keys or cracking due to structural degradation [10], [17].

Consequently, the replacement of elastomeric bearings may be required during the early service life of national bridges, raising concerns about economic losses associated with the replacement process and the interruption of vehicular traffic [18]. In cases where the elastomeric bearing replacement process is essential, the bridge superstructure must be lifted using a hydraulic jack in small increments, thus requiring an analysis of the lifting stresses induced in the superstructure. Additionally, during the lifting of the superstructure, the traffic must be interrupted to minimize stresses induced by live load [19]. The process described above is expensive due to the required specialized equipment, the interruption of traffic, and the precision needed when raising the hydraulic bridge jacks since differential settlements should not be generated. Thus, owing in large part to the practical interest, the structural design of elastomeric bearings must consider a better approximation of all the stresses to which the bridge will be subjected during its service life, including loads such as seismic loads that may suddenly occur, compromising its adequate structural performance.

METHODOLOGY

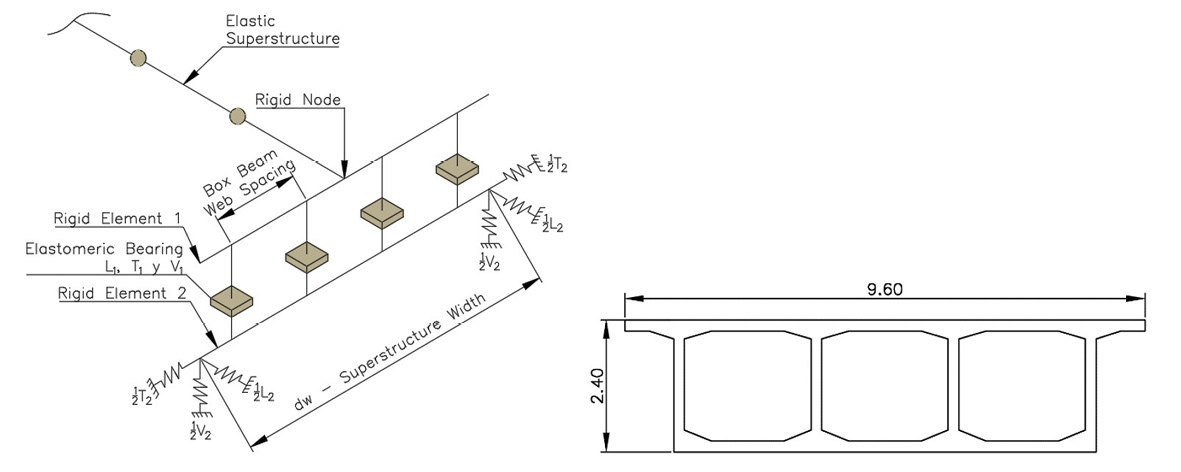
A box girder bridge representative of design practices and current construction trends in Colombia is selected based on the bridge typologies presented by [20]. Additionally, to determine the performance of the elastomeric bearings, the spring abutment model presented in [21] is selected here because it considers the abutment’s contribution to the bridge system’s overall stiffness. The spring abutment model presented by [21] assumes an equivalent stiffness to represent the gap opening between the superstructure and abutment, the contribution of the abutment, the abutment piles, and the abutment backing soil. It is essential to highlight that before closing the gap opening, the force of the superstructure is transmitted through the elastomeric bearings to the abutment, subsequently to the piles, and finally, to the abutment foundation soil, such a physical system is represented by a series system of springs. Once the gap opening closes, the passive pressure of the abutment backing soil resists the superstructure’s remaining force. Fig 1 shows the definition of variables and the spring systems used in modeling the bridge abutments for this study. The bridge’s superstructure consists of a three-cell concrete box girder with an upper flange width of 9.60 m and depth of 2.40 m, also shown in Fig 1. The columns of the intermediate supports have a circular cross-section with a 2.50 m.

Fig 1. Spring abutment model for elastomeric bearings and cross-section of the bridge superstructure.

Source: Authors.

Numerical modeling

The concrete box girder bridge model selected in this study has a total length of 160 m with intermediate supports that vary in location and height. Additionally, plan curvature values of 0.00°, 30.00°, and 60.00° are defined for twelve bridge configurations. The boundary conditions associated with the elastomeric bearings are obtained from the design guidelines provided by CCP 14 and the Eurocode. Fig 2 shows the four main bridge configurations. It is essential to highlight that each bridge configuration presented in Fig 2 is associated with the three selected plan curvature values of 0.00°, 30.00°, and 60.00°, which are also depicted in Fig 2.

Boundary conditions

Fig 3 shows in green dots the boundary conditions selected to model the support of the superstructure on abutments using the model proposed in [21]. The support of the superstructure on intermediate supports or columns is modeled as a pinned connection. A fixed connection is assumed at the base of the intermediate supports or columns. Finally, the elastomeric bearings are modeled in the bridge abutments using springs with equivalent rigidities by considering the shape factor, shear modulus, and compressive elastic modulus in the support according to the recommendations provided by each standard. Fig 3 also shows in detail the location and configuration of the elastomeric bearings.

Fig 2. Bridge configurations and plan curvatures.

Source: Authors.

Fig. 3 Bridge configurations and plan curvatures.

Source: Authors.

Model validation

Table 1 shows the values of natural periods for the three first mode shapes obtained from the Finite Element (FE) model assembled in MIDAS/Civil and the corresponding values provided by [20]. Good agreement is observed. Finally, Table 2 shows the natural periods (Tx and Ty) values in the longitudinal “X” and transversal “Y” directions, respectively.

Table 1. Comparative analysis of natural periods.

Configuration 1 – Straight

Mode

Kaleybar and Tehrani [20]

Authors

OpenSees (seg)

CSI Bridge (seg)

MSBridge (seg)

Midas Civil (seg)

1

1.578 s

1.591 s

1.584 s

1.579 s

2

1.225 s

1.238 s

1.231 s

1.380 s

3

1.137 s

1.147 s

1.142 s

1.369 s

Source: Authors.

Table 2. Natural periods for bridge configurations.

Configuration

Tx (seg)

Ty (seg)

1

1.1849 s

1.6198 s

2

1.1827 s

1.5150 s

3

1.1628 s

1.6830 s

4

1.1621 s

1.5131 s

5

1.1956 s

1.6000 s

6

1.1927 s

1.4383 s

7

1.1639 s

1.5507 s

8

1.1634 s

1.4366 s

9

1.3398 s

1.4580 s

10

1.3521 s

1.3926 s

11

1.3247 s

1.4266 s

12

1.3343 s

1.3769 s

Source: Authors.

Time history analysis

Response spectra must equal or exceed the target response spectrum in the natural period range of 1.15 s to 1.70 s. Similarly, the response spectra are scaled so that the average response spectrum of the acceleration records coincides with the target response spectrum in the required natural period range with minimal error. The six scaled ground motion acceleration records are applied to all bridges so that the result obtained for each model is comparable with the other models. It is also worth noting that the same scaling factor is used for the two horizontal ground motion components. The properties of the selected ground motions are presented in and. The response spectra of the scaled ground motions are based on the design spectrum of the provisions of CCP 14, which corresponds to a 7% probability of exceedance in 75 years. Lastly, The ground motion acceleration records are scaled in SeismoMatch [22].

In this study, the city of Bogotá is selected as a case study, assuming soil type C (i.e., with shear wave velocity, Vs, in the range of 360 to 760 m/s) and soil type D (i.e., with shear wave velocity, Vs, in the range of 180 to 360 m/s). The characteristics of soil deposits in Bogotá facilitate the occurrence of an earthquake with a magnitude Mw > 7.0 in the Piedemonte Llanero (whose distance from Bogotá is less than 250 km). Additionally, seismic effects can be amplified because the lacustrine soil deposits are located to the west and northwest of Bogotá, where the metropolitan area has been expanding [23]. In near-fault regions, soil effects are significant. Notably, an increase in the peak ground acceleration motion (PGA) in soft soil is expected. In such areas, failure to consider this fact during the design process results in greatly underestimated seismic displacements and force demands for a bridge. Likewise, the amplification of responses in soft soils is observed for far-field records and must also be considered; however, despite their importance, these records are not as destructive as near-fault records [24].

Regarding numerical modeling, the two perpendicular horizontal components of the seismic records are applied simultaneously in the longitudinal and transverse directions of the bridge, following the recommendations given by [20]. The longitudinal axis of the bridge configurations presented in this study was selected along the superstructure, and the transverse direction is considered perpendicular to the longitudinal axis. Due to the far-field type of the selected ground motions, the vertical component of the motion records was not considered. The effect of seismic incidence angle was also not considered. However, research findings have shown that the angle of incidence of the earthquake can influence the bridge’s response, particularly in irregular and curved bridges. Table 3 and Table 4 show the main features of the motion records selected for the time history analysis.

Design of elastomeric bearings

The CCP 14 recommends two methods for the design of reinforced elastomeric supports; the selection of the method depends on the dimensions of the elastomer obtained, according to the CCP 14 in section C.14.7.5.1. The regulations clarify large steel-reinforced elastomeric bearings (defined as those that are thicker than 200 mm or that have a plan area greater than 0.65 m2) are more challenging to manufacture than smaller ones. The consequences of structural failure in large elastomeric bearings require special attention. Large elastomeric bearings should be designed according to method B, which requires additional testing and quality control. However, if the design stresses are low, it is possible to use method A. Conversely, method B should be used if the stresses are high and generate large elastomeric bearings.

In this study, all elastomeric bearings are designed following the guidelines from method A. Then, the design of elastomeric bearings obtained from the design guidelines provided by the Eurocode generates elastomeric bearings with larger dimensions in plan and with lower heights than the design obtained according to the design guidelines provided by CCP 14. Therefore, the Eurocode design guidelines produce more stable elastomeric bearings that are less susceptible to twist failure and adequately target large structural demands from extreme seismic events. The dimensions of the elastomeric bearings obtained following design guidelines from CCP 14 and Eurocode are presented in Table 5.

Table 3. Selected acceleration motion record parameters.

Event name

Condition

Mw

PGA (g)

Duration (s)

Loma Prieta

Near Field

6.93

0.644

39.98

México

Frontal Field

7.20

0.039

129.99

México 1985

Far Field

7.20

0.039

85.32

Source: Authors.

Table 4. Definition of the acceleration motion records.

Event name

Condition

Soil type

Definition

Loma Prieta

Near Field

C

C.L.P-C

Loma Prieta

Near Field

D

C.L.P-D

México

Frontal Field

C

F.M-C

México

Frontal Field

D

F.M-D

México 1985

Far Field

C

L.M-C

México 1985

Far Field

D

L.M-D

Source: Authors.

Table 5. Dimensions of the designed elastomeric bearings.

Configuration

CCP 14

Eurocode

P

θ

B (mm)

A (mm)

H (mm)

B (mm)

A (mm)

H (mm)

1

500

500

160

700

700

136

2

500

500

160

700

700

136

3

600

600

200

700

800

157

4

600

600

183

700

800

136

1

30°

500

500

160

700

700

136

2

30°

500

500

160

700

800

136

3

30°

700

700

217

800

800

157

4

30°

600

600

183

800

800

136

1

60°

500

500

160

700

700

136

2

60°

500

500

160

700

700

136

3

60°

700

700

217

900

900

178

4

60°

600

600

183

900

900

157

P: Column configuration distribution; θ: Plan bridge curvature angle; B: Length of the elastomeric bearing; A: Width of the elastomeric bearing; H: Thickness of the elastomeric bearing.

Source: Authors.

RESULTS

Fig 4 shows the location of the three displacement measurement points in the abutments (nodes 100 and 260) and the intermediate support (node 180). Fig 5 shows the displacements in the longitudinal “X” direction obtained at the previously mentioned measurement points for the straight bridge configuration 1 (no plan curvature).

Fig 4. Locations and definitions of the displacement measurement points.

Source: Authors.

Fig 5. Straight bridge configuration 1 (no plan curvature).

Source: Authors.

Comparatively larger displacements are observed for the elastomeric bearings obtained from the CCP 14 than those obtained from the Eurocode, showing variations between 37% and 73%. Likewise, the frontal-field motion records acting in soil type “D” produce the largest values for displacements. Thus, considering Bogota’s soil deposits, seismic response in soft soils is notably amplified. Therefore, it is relevant to consider soil effects in determining bridge seismic response, as reported in [24]. Fig 6 shows the displacements in the longitudinal “X” direction for the straight bridge configuration 2. The previously discussed tendency is also observed in the straight bridge configuration 2 regarding Eurocode’s better seismic performance for elastomeric bearings design. However, in this case, the variations range between 44% and 72%. Fig 7 shows the displacements in the “X” direction at the straight bridge configuration 3 measurement points. No significant variation in the seismic response is observed for the straight bridge configuration 3. However, lower displacements are observed in the abutments. It is possible to observe variations ranging between 32% and 52%, remarkably showing similar results regarding design standards for the cases C.L.P. and L.M. Finally, regarding the last straight bridge configuration, Fig 8 shows the displacements in the “X” direction for the straight bridge configuration 4.

Fig 6. Straight bridge configuration 2 (no plan curvature).

Source: Authors.

Fig 7. Straight bridge configuration 3 (no plan curvature).

Source: Authors.

Fig 8. Straight bridge configuration 4 (no plan curvature).

Source: Authors.

Regarding straight bridges or bridges with a plan curvature of 0.00°, significant variations concerning the design standards occur for the straight bridge configurations 1 and 2, with variations ranging from 57% to 63%, while for the straight bridge configurations 3 and 4, the variations ranging from 48% to 56%. Therefore, the most critical condition corresponds to the straight bridge configurations with equal spans (bridge configurations 1 and 2). Conversely, straight bridge configurations 3 and 4, which correspond to irregular bridge configurations with variations in the length of bridge spans, lead to smaller displacements. Interestingly, elastomeric bearings designed by CCP 14 lead to more significant displacements than those designed by the Eurocode. Additionally, the largest displacements in straight bridge configurations were obtained for the frontal-field motion records, with variation ranges from 2.85 mm to 5.14 mm, compared to those obtained for the near and far-field motion records, with variation ranges from 0.66 mm to 5.14 mm. 2.11mm. Therefore, Bogotá’s soft soils amplify the seismic responses, highlighting the importance of the soil effects in the seismic analysis [24]. Interestingly, this study provides additional physical insights to the study conducted by [20] by incorporating the stiffness contribution in modeling the elastomeric supports using the model proposed by [21]. It is important to note that [20] did not consider the influence of elastomers in their study. Furthermore, this study also provides additional physical insights to the study conducted by [24] by incorporating the analysis of the frontal-field motion records because [24] only considered the seismic response in the intermediate supports. Fig 9 shows the displacements in the longitudinal “X” direction obtained for bridge configuration 1 (plan curvature of 30.00°).

The elastomeric bearings designed by CCP 14 lead to larger displacements than those designed by the Eurocode, with variations ranging between 31% and 56%. Likewise, the frontal-field motion record continues to be the most critical. It is essential to highlight that in the intermediate support (node 180), no significant differences are observed in the seismic response obtained from the frontal-field record motion for the different types of soil types, partly because the elastomeric bearings located in the abutments are the ones that are most affected by the influence of the soil type. In contrast, the intermediate supports are located further away from the areas of the bridge in contact with the foundation soil. From the above, it is concluded that although the general trend is maintained for this bridge configuration, the ranges of variation and differences are smaller. However, the statements by [20] and [24] described above continue to be applicable. Fig 10 shows the displacements in the longitudinal “X” direction for bridge configuration 2 (plan curvature of 30.00°). For bridge configuration 3, the elastomeric abutment and intermediate support bearings show variations between 58% and 65% and 39% and 56%, respectively. Fig 11 shows the displacements in the “X” direction for bridge configuration 3 (plan curvature of 30.00°). It is possible to observe that the elastomeric bearings located in abutments and intermediate support show variations between 31% and 41% and 15% and 21%, respectively. Similar results regarding the larger displacements obtained from CCP 14 contrast those obtained from the Eurocode. Fig 12 shows the displacements in the “X” direction for bridge configuration 4 (plan curvature of 30.00°). As discussed in the foregoing, elastomeric bearings designed by CCP 14 lead to more significant seismic displacements than those designed by the Eurocode.

Fig 9. Bridge configuration 1 (plan curvature of 30.00°).

Source: Authors.

Fig 10. Bridge configuration 2 (plan curvature of 30.00°).

Source: Authors.

Considering the analysis of the record motions for the bridge configuration with plan curvature of 30.00°, the frontal-field, and the near-field motion records lead to seismic displacements ranging from 0.95 mm to 2.05 mm and 0.35 mm to 1.17 mm, respectively. However, in the bridge configuration with a plan curvature of 30.00°, the variation ranges are smaller than in the configuration with a plan curvature of 0.00°. Conversely, the displacements in the elastomeric bearings located in abutments variations range from 31% to 42%, and in elastomeric bearings located in the intermediate support variations range from 14% to 24%, showing that the elastomeric bearings located in abutments notably underwent larger displacements.

Fig. 11. Bridge configuration 3 (plan curvature of 30.00°).

Source: Authors.

Fig 12. Bridge configuration 4 (plan curvature of 30.00°).

Source: Authors.

On the other hand, for bridge configurations with a plan curvature of 30.00°, the most significant variations concerning the design standards are observed for bridge configurations 1 and 2, ranging from 33% to 66%. In contrast, for bridge configurations 3 and 4, variations range from 15% to 42%. Therefore, the most critical condition is observed in regular bridge configurations where bridge spans are equal (bridge configurations 1 and 2), decreasing for the irregular bridge configurations 3 and 4. For the four bridge configurations with a plan curvature of 30.00°, the elastomeric bearings located in abutments showed more significant seismic displacements when compared to those obtained for the elastomeric bearings located in intermediate supports, as shown in [20]. Additionally, for the four bridge configurations with a plan curvature of 30.00°, the elastomeric bearings located in the abutments are significantly affected by the soil type due to the permanent contact with the soil foundation.

Fig 13 shows the displacements in the longitudinal “X” direction obtained for bridge configuration 1 (plan curvature of 60.00°). As previously discussed, larger displacements are observed for the elastomers designed by CCP 14 than for those designed by the Eurocode, showing variations between 26% and 71%. In addition, the frontal-field motion records acting in soil type “D” produce the largest displacements. It is also possible to identify that the largest displacements occur in the elastomeric supports located in the abutments, with variations ranging from 55% to 69%, in contrast with the elastomeric bearings located in the intermediate supports in which the variations vary from 26% to 31%. It is important to note that the elastomeric bearings located in the intermediate supports show the same type of seismic response, regardless of the motion record chosen; since the ranges of variation, displacements, and differences are very similar, this can be attributed to the curvature in plan and the fact that the soil effect is reduced in intermediate supports. Fig 14 shows the displacements in the “X” direction for bridge configuration 2 (plan curvature of 60.00°).

Fig 13. Bridge configuration 1 (plan curvature of 60.00°).

Source: Authors.

Fig 14. Bridge configuration 2 (plan curvature of 60.00°).

Source: Authors.

As thoroughly discussed in the foregoing, the elastomeric bearings designed by CCP 14 lead to larger displacements when compared with those designed following the Eurocode guidelines, showing variations between 19% and 67%. For bridge configuration 2 with a plan curvature of 60.00°, no significant effects are evident concerning the impact of the selected motion records. In other words, the seismic response is very similar in terms of the motion records chosen and the soil type. Therefore, the bridge’s geometric configuration is the most influential factor in modifying the bridge’s seismic response. Thus, the displacements for elastomeric bearings located in abutments show variations ranging from 50% to 67%, and elastomeric bearings located in the intermediate support show variations ranging from 19% to 32%, confirming that the elastomeric bearings in abutments are comparatively influenced in terms of seismic demand. It is important to note that bridge configuration 1, with a plan curvature of 60.00°, maintained a similar trend regarding design standards and soil type. Fig 15 shows the displacements in the “X” direction for bridge configuration 3 (plan curvature of 60.00°). Interestingly, the elastomeric bearings located in abutments and intermediate supports show variations between 35% and 59% and 14% and 21%, respectively. Similar results regarding the larger displacements obtained from CCP 14 contrast those obtained from the Eurocode. It is crucial to notice that the seismic response for the elastomeric bearing at the intermediate support is maintained regardless of the motion record chosen. Thus, this can be attributed to the plan’s bridge curvature and the fact that the intermediate supports are the furthest from the abutments and, therefore, the least prone to soil effects. However, with respect to the relevance of the frontal-field motion record, the seismic response changes since, in this case, its significance is not evident. Fig 16 shows the displacements in the “X” direction for bridge configuration 4 (plan curvature of 60.00°).

Finally, the trend of larger seismic displacements for elastomeric bearings obtained from the CCP 14 in contrast with those obtained from the Eurocode is maintained since the observed variations ranged from 7% to 55%. This finding confirms the best seismic performance of the elastomeric bearings designed following the Eurocode guidelines. Regarding the record motions under analysis, the variation ranges vary from 0.36 mm to 2.19 mm for the frontal-field motion records. Near-field and far-field motion records vary from 0.48 mm to 2.21 mm, thus maintaining the trend of the first three configurations with a plan curvature of 60.00°. Therefore, the relevance of the frontal-field motion records is not evident. Consequently, the far-field, frontal-field, and near-field motion records impact the bridges with a plan curvature of 60.00° similarly. In conclusion, it is possible to state that for bridges with a plan curvature of 60.00°, the largest variations concerning the design standards are obtained for bridge configurations 1 and 2, with variations ranging from 19% to 71%.

Fig 15. Bridge configuration 3 (plan curvature of 60.00°).

Source: Authors.

Fig 16. Bridge configuration 4 (plan curvature of 60.00°).

Source: Authors.

CONCLUSIONS

The design guidelines for elastomeric bearings provided by CCP 14 do not consider the seismic performance of elastomeric bearings. Instead, CCP 14 only considers vertical loads in service as input for the structural design process of elastomeric bearings. Conversely, the Eurocode provides design guidelines that consider loads in ultimate limit states, including seismic loads. Therefore, this study developed numerical models using different bridge configurations to assess the stiffness contribution of the elastomeric bearings based on the design guidelines provided by CCP 14 and the Eurocode. Consequently, this study provided additional physical insights into the results presented by [24] by considering the simultaneous contribution of the elastomeric bearings in abutments and intermediate supports. The results of this study show that for straight bridges (plan curvature of 0.00°), the most unfavorable condition is achieved when the spans of the bridges are equal. Additionally, the largest displacements were obtained for the frontal frontal-field motion records, stressing the importance of considering the soil type’s effects in the bridges’ seismic analysis. It was also evident how the elastomeric bearings located in abutments showed larger displacements when compared to those obtained for the intermediate supports.

Bridge configurations with a plan curvature of 30.00° showed the same most unfavorable condition when the spans of the bridges are equal. For bridge configurations with a plan curvature of 60.00°, the effect of the frontal-field motion records in triggering large displacements is not evident. However, for the four configurations with a plan curvature of 60.00°, the elastomeric bearings located in abutments show larger displacements than those obtained for the intermediate supports. It is possible to conclude how this study complements the work by [20] on the importance of modeling abutments in irregular bridges; however, it is essential to highlight that [20] did not consider the influence of elastomers on the bridge dynamic response. Thus, this study incorporates the contribution of the stiffness of the elastomers based on the model presented by [21], allowing us to confirm the results presented by [24] regarding the importance of frontal-field motion records, especially for bridge configurations with plan curvatures of 0.00° and 30.00°. Finally, the better seismic performance of the elastomeric bearings designed following the Eurocode design guidelines is evident because of the significantly lower displacements achieved, which are mainly associated with elastomeric bearings with larger plan dimensions and lower heights compared to those designed following the design guidelines provided by CCP 14, thus, leading to more stable elastomeric bearings.

CRediT AUTHORSHIP CONTRIBUTION STATEMENT

Carolina Castaño-Agudelo: Conceptualization, Investigation, Simulations, Writing - original draft preparation. Carlos Alberto Riveros-Jerez: Conceptualization, Investigation, Supervision, Writing - review & editing. Alvaro Viviescas-Jaimes: Conceptualization, Investigation, Supervision, Writing - review & editing.

REFERENCES

[1] AASHTO, AASHTO LRFD bridge. 2012.

[2] C. W. Roeder and J. F. Stanton, “State-of-the-Art Elastomeric Bridge Bearing Design,” ACI Struct. J., vol. 88, no. 1, 1991.

[3] R. L. Brockenbrough, “Highway Engineering Handbook: Building and Rehabilitating the Infrastructure,” in Highway Engineering Handbook: Building and Rehabilitating the Infrastructure, Third Ed., McGraw-Hill, 2009.

[4] INVIAS, Norma colombiana de diseño de puentes – LRFD – CCP 14. 2014.

[5] Q. Zhang and M. S. Alam, “Performance-based seismic design of bridges: a global perspective and critical review of past, present and future directions,” Struct. Infrastruct. Eng., vol. 15, no. 4, pp. 539–554, 2019.

[6] W. Wei, Y. Yuan, A. Igarashi, H. Zhu, and P. Tan, “Experimental investigation and seismic fragility analysis of isolated highway bridges considering the coupled effects of pier height and elastomeric bearings,” Eng. Struct., vol. 233, no. January, p. 111926, 2021.

[7] P. Asadi, D. Nikfar, and I. Hajirasouliha, “Life-cycle cost based design of bridge lead-rubber isolators in seismic regions,” Structures, vol. 27, no. June, pp. 383–395, 2020.

[8] M. Aria and R. Akbari, “Inspection, condition evaluation and replacement of elastomeric bearings in road bridges,” Struct. Infrastruct. Eng., vol. 9, no. 9, pp. 918–934, 2013.

[9] Z. M. Mohamedmeki, F. J. Esmail, and E. A. Ajeel, “Fatigue life analysis of laminated elastomeric bearing pad,” Mater. Today Proc., no. xxxx, 2021.

[10] E. Muñoz and E. Valbuena, “Evaluación del estado de los puentes de acero de la red vial de Colombia,” Int. Desastr. Nat. Accid. e Infraestruct. Civ., vol. 4, no. 40, pp. 125–140, 2007.

[11] Y. M. Al-Anany, M. A. Moustafa, and M. J. Tait, “Modeling and evaluation of a seismically isolated bridge using unbonded fiber-reinforced elastomeric isolators,” Earthq. Spectra, vol. 34, no. 1, pp. 145–168, 2018.

[12] D. J. Lee and D. J. Lee, “Expansion joints,” in Bridge Bearings and Expansion Joints, no. September, 2020, pp. 60–83.

[13] A. Strauss, E. Apostolidi, T. Zimmermann, U. Gerhaher, and S. Dritsos, “Experimental investigations of fiber and steel reinforced elastomeric bearings: Shear modulus and damping coefficient,” Eng. Struct., vol. 75, pp. 402–413, 2014.

[14] A. Khaloo, A. Maghsoudi-Barmi, and M. Ehteshami Moeini, “Numerical parametric investigation of hysteretic behavior of steel-reinforced elastomeric bearings under large shear deformation,” Structures, vol. 26, no. April, pp. 456–470, 2020.

[15] A. Khaloo, A. Maghsoudi-Barmi, and M. Ehteshami Moeini, “Numerical parametric investigation of hysteretic behavior of steel-reinforced elastomeric bearings under large shear deformation,” Structures, vol. 26, no. March, pp. 456–470, 2020.

[16] H. A. Gibe, H. Tamai, and Y. Sonoda, “Numerical study on failure process and ultimate state of steel bearing under combined load,” Heliyon, vol. 6, no. 4, p. e03764, 2020.

[17] E. Muñoz and D. Gómez, “Análisis de la evolución de los daños en los puentes de Colombia,” Rev. Ing. Constr., vol. 28, no. 1, pp. 37–62, 2013.

[18] I. Kilanitis and A. Sextos, “Impact of earthquake-induced bridge damage and time evolving traffic demand on the road network resilience,” J. Traffic Transp. Eng. (English Ed., vol. 6, no. 1, pp. 35–48, 2019.

[19] P. . Nazzal S. Armouti, “9 . Design of Earthquake-Resistant Bridges ( AASHTO Code ),” in Earthquake Engineering: Theory and Implementation with the 2015 International Building Code, Third Edit., M.-H. Education, Ed. New York, Chicago, San Francisco, Athens, London, Madrid, Mexico City, Milan, New Delhi, Singapore, Sydney, Toronto: McGraw-Hill Education, 2015, pp. 1–63.

[20] R. Siami Kaleybar and P. Tehrani, “Investigating seismic behavior of horizontally curved RC bridges with different types of irregularity in comparison with equivalent straight bridges,” Structures, vol. 33, no. February, pp. 2570–2586, 2021.

[21] A. Aviram, K. R. Mackie, and B. Stojadinovic, “Effect of abutment modeling on the seismic response of bridge structures,” Earthq. Eng. Eng. Vib., vol. 7, no. 4, pp. 395–402, 2008.

[22] Seismosoft, “SeismoMatch.” 2020.

[23] G. Chicangana, C. A. Vargas-Jiménez, A. Kammer, A. Caneva, E. Salcedo Hurtado, and A. Gómez Capera, “La amenaza sísmica de la Sabana de Bogotá frente a un sismo de magnitud M > 7.0, cuyo origen esté en el Piedemonte Llanero,” Cuad. Geogr. Rev. Colomb. Geogr., vol. 24, no. 2, p. 73, 2015.

[24] N. Cheshmehkaboodi and L. Guizani, “On the influence of earthquakes and soil characteristics on seismic response and performance of isolated bridges,” Arab. J. Geosci., vol. 14, no. 5, 2021.

Author 1 received the M.Eng. in civil engineering from the Universidad de Antioquia, Medellín, Colombia. https://orcid.org/0000-0002-3269-222X

Author 2 received the M.Eng. and Dr.Eng. in engineering from Tokyo University and Kyoto University, Japan. He is a full professor at the Universidad de Antioquia and visiting professor at Kyushu University, Japan. http://orcid.org/0000-0002-7128-4165

Author 3 received the M.Sc. and Ph.D. in civil engineering from the Universitat Politècnica de Catalunya, Spain. He is a full professor at the Universidad Industrial de Santander. http://orcid.org/0000-0003-0052-8801